Tweed Heads Property

powered by Open2view.com

26 Avondale Drive

North Coast
3
2
N/A
N/Asqm
600sqm
26 Avondale Drive North Coast
proudly marketed by
Tate Brownlee Real Estate
Family Comfort and Style in the Heart of Banora Point
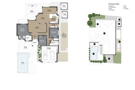
Tucked in one of Banora Point's most peaceful, family-friendly pockets, is the perfect blend of modern comfort and relaxed coastal living. Here, neighbours still wave hello, kids ride bikes until sunset, and the rhythm of daily life feels just that little bit slower - yet you're only minutes from beaches, schools, and the vibrant energy of Tweed and Coolangatta. Welcome to 26 Avondale Drive. This single-level brick and tile home has been thoughtfully designed for easy living, with a flat 600m² block and a floorplan that balances connection and privacy. Step inside and you'll feel it immediately - the natural light, the cool flow of the Daikin air conditioning, and the sense of calm that only comes from a home that's been truly cared for. At its heart lies a beautifully appointed kitchen, the kind that makes cooking a joy - with stone benchtops, a 900mm stove, stainless steel dishwasher, and filtered drinking water at your fingertips. It's where Sunday pancakes meet weeknight dinners, and where stories are shared long after the plates are cleared. The living and dining areas spill effortlessly to a covered outdoor entertaining space, complete with an outdoor kitchen - the perfect setting for barbecues and easy summer afternoons. The saltwater in-ground pool, finished with travertine coping and surrounded by eco-decking and a shade sail, invites you to unwind, refresh, and make memories that last. A dedicated office with charming VJ panelling provides the ideal space to work from home or nurture creative pursuits. Each bedroom is fitted with built-in robes and ceiling fans, while the master suite offers a peaceful retreat with its own ensuite and walk-in robe. Practical touches - solar power, solar hot water, a covered retractable clothesline, and raised garden beds - ensure everyday living is as efficient as it is enjoyable. From here, you're just moments to Banora Village Shopping Centre, Tweed City, local schools, sporting clubs, and the golden sands of Kingscliff and Coolangatta beaches. Whether it's a morning surf, a sunset stroll along the Tweed River, or a quick drive to the Gold Coast Airport, everything you need is right at your fingertips. 26 Avondale Drive isn't just a house - it's a home made for living well, entertaining often, and enjoying the best of the Tweed Coast lifestyle. Auction in-rooms at the Ivory Waterside Tavern Tuesday November 11th 6:30pm DST @ Tate Brownlee Real Estate, we open doors to your future Key Features: Property features: • Salt water in-ground swimming pool • Study with VJ panelling • Solar power (approx. 6kW, 18 panels) • Solar hot water • 2.569m ceilings • Undercover retractable clothesline • Raised garden beds • Double garage with internal access • Flat 600m2 block • Secure off-street parking for boat / caravan • Three bedrooms all with built in robes & ceiling fans • Daikin Split System Airconditioning in living/dining & master bedroom • 9 minute drive to Gold Coast Airport • Less than 15 minute drive to Kingscliff & Coolangatta beaches • 12 minute drive to Tweed Valley Hospital
Question
Location
Upload by Jacinta Harry & Ali Wright
Tweed Coast
This property was photographed by
Jacinta Harry & Ali Wright
0404 836 192